Серов
-14 °C
$79,15
91,84
Присоединяйтесь к нам:

Начался поиск подрядчика для реконструкции сквера ДКМ за 105 миллионов рублей

Департамент государственных закупок Свердловской области опубликовал электронный аукцион на «Комплексное благоустройство общественной территории "Парк у Дворца культуры металлургов в г. Серове" (3 этап)». Информация о торгах была опубликована 12 февраля.

Напомним, территория будет благоустроена в рамках программы «Формирование комфортной городской среды». В прошлом году за этот объект проголосовали больше 13 тысяч горожан.
Начальная (максимальная) цена контракта – 105 651 040 рублей 26 копеек. Итоги торгов планируют подвести 25 февраля. Работы должны быть выполнены в период с 20 апреля 2026 по 15 ноября 2027 года.
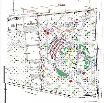
На сайте госзакупок опубликован проект работ.
В дефектной ведомости говорится, что необходимо будет свалить в общей сложности 47 тополей, 9 кленов, 9 яблонь, 3 липы, 53 черемухи. Нужно будет выкорчевать 125 пней, срезать и выкорчевать 326 кустарников. Сделать омолаживающую обрезку 20 деревьев.
В ведомости элементов озеленения сказано, что будет посажено 10 плакучих ив «Гном», 10 ив ломких «Bulata», 3 сосны на штамбе (штамбовое дерево — это искусственно сформированное растение с ровным стволом, освобожденным от лишних ветвей, и аккуратной кроной в виде каскада ниспадающих ветвей, зонтика или геометрической фигуры), 4 клена «Гиннала», 7 яблонь «Роялти», 93 можжевельника казацких «Tamariscifolia», 12 горных сосен «Sherwood Compact».

Также будет посеяно 10969,69 квадратного метра газонов. Будут посажены кустарники и многолетние растения: колосняк песчаный Blue Done; овсяница Готье; тимьян ползучий Magic Carpet; гортензия Phantom, Polar Bear, Skyfall, Vanille Fraise; вейник остроцветковый Avalanche; вейник остроцветковый Avalanche в бетонных конструкциях; спирея березолистная Pink Sparkler.
Установят 12 скамей «Классика», 38 урн «Классика-4».
Будет установлено 6 опор «Мимоза02» (на 2 светильника на каждой), на которых разместят 12 светильников «Классических».
Установят 9 чугунных опор «Кастра01» (по два светильника на каждой), 12 опор «Кастра01» (на один светильник каждая). На них установят 30 светильников «Русь-1».
Установят 25 светящихся шаров «Migre» (4 диаметром 1000 миллиметров, 6 – 800 миллиметров, 15 – 500 миллиметров).

Поделиться в соцсетях:

Условия размещения рекламы
Наш медиакит
Комментарии
Популярные новости
Вход

Через соцсети (рекомендуем для новых покупателей):

Спасибо за обращение   

Если у вас возникнут какие-либо вопросы, пожалуйста, свяжитесь с редакцией по email

Спасибо за подписку   

Если у вас возникнут какие-либо вопросы, пожалуйста, свяжитесь с редакцией по email

subscription
Подпишитесь на дайджест «Выбор редакции»
Главные события — утром и вечером
Предложить новость
Нажимая на кнопку «Отправить», я соглашаюсь
с политикой обработки персональных данных